
¿ø·¡´Â Áö»ó 5Ãþ ±Ô¸ðÀÇ ±³È¸°¡ ÀÖ´ø ºÎÁö¿¡ °øµ¿Ã¼ ÁÖÅÃÀÌ Áö¾îÁø´Ù. ±³È¸´Â ¿øÇüÀûÀÎ ±× ¸ð½À°ú °°ÀÌ ÁöÇÏ·Î ´Ù½Ã µé¾î°¡°í, 1Ãþ¿¡´Â µ¿³× ÁÖ¹ÎÀ» À§ÇÑ Ä«Æä°¡ Åõ¸íÇÏ°Ô ÀÚ¸® Àâ´Â´Ù. À§¿¡´Â ¼·Î ºñ½ÁÇÑ »óȲ¿¡ ³õÀÎ »ç¶÷µéÀÌ »ì°Ô µÈ´Ù. ÄÚÀ̳ë´Ï¾Æ °øµ¿Ã¼ ÁÖÅÃÀº ÀÌ·¯ÇÑ »óȲÀ» ÀûÃþÇÑ´Ù.

Pilotis
ÇÊ·ÎÆ¼´Â ÁÖÂ÷¸¦ È®º¸ÇØ¾ß ÇÏ´Â ¹ýÀû Àǹ«¸¦ ÇØ°áÇϱâ À§ÇÑ ³ë·ÂÀÌÁö¸¸, ±× ¹°¸®ÀûÀÎ °á°ú´Â ÂüȤÇÑ °æ¿ì°¡ ¸¹´Ù.
2Á¾ÀϹÝÁÖ°ÅÁö¿ªÀÇ µµ·Î-°Ç¹°°úÀÇ °ü°è´Â ¹«½ÉÇÏ°Ô ´Ã¾î¼± ±âµÕ°ú, ÁÖÂ÷Àå, ±×¸®°í ¼û°ÜÁö°Å³ª µÚ·Î ÈÄÅðÇÑ ÀÛÀº °è´Ü½Ç µîÀ¸·Î ±Í°áµÈ´Ù. ¸¹Àº ÀÛÀº ºô¶ó °Ç¹°ÀÇ ÇÊ·ÎÆ¼¿¡´Â ÃÖ¼ÒÇÑÀÇ ±â´ÉÀûÀÎ °è´Ü°ú, ÇÊ¿äÇÒ ¶§¸¸ ÄÑÁö´Â ¼¶¶àÇÑ Á¶¸í°ú, ºÐ¸®¼ö°Å¸¦ ±â´Ù¸®´Â ¾²·¹±â¿Í, °ü¸®µÇÁö ¾Ê´Â ÀÛÀº Á¶°æ °ø°£, ±×¸®°í Â÷¸¸ ÀÖÀ» »ÓÀÌ´Ù. ÇÊ·ÎÆ¼´Â °Ç¹°°ú ÁÖº¯ ȯ°æ »çÀÌ¿¡ »è¸·ÇÑ °æ°è-°ø°£À» Çü¼ºÇÑ´Ù. À̰͵éÀÌ ÀÌ¸é µµ·ÎÀÇ °¡·Î dz°æÀ» Áö¹èÇÑ´Ù.
¶ÇÇÑ ´ëÁö¿Í »óÃþºÎÀÇ °Ç¹°Àº ±âÀÌÇÑ °ü°è¸¦ Çü¼ºÇϰí, °Ç¹°ÀÌ ¼ ÀÖ´Â ¸ð½ÀÀº ±¸Á¶ÀûÀ¸·Î ºÎÀÚ¿¬½º·´´Ù. Á¤ºÏ ÀÏÁ¶ ±ÔÁ¦¸¦ ¹Þ¾Æ ÇÑÂÊÀ¸·Î ±â¿ï¾îÁö´Â °Ç¹°ÀÇ »óºÎ, ±×¸®°í ÁÖÂ÷¸¦ È®º¸Çϱâ À§ÇØ ±âÇüÀûÀÎ À§Ä¡¿¡ ³õÀÎ ±âµÕ. ÀÌ µÎ °¡Áö·Î ÀÎÇØ ¿ì¸®°¡ ÀÏ»óÀûÀ¸·Î °æÇèÇÏ´Â ¸¹Àº °Ç¹°Àº ¶§¶§·Î ±âÀÌÇÏ°Ô º¸ÀδÙ.
±×·¡¼ ÀûÃþÀÇ ½ÃÀÛÁ¡Àº ÁÖº¯ ȯ°æ°ú ±³È¸, Ä«Æä, ÁÖÅÃÀÇ À¯ÀÏÇÑ Á¢Á¡ÀÎ ÇÊ·ÎÆ¼´Ù.



From Pilotis
¼¼ °¡Áö ÁÖµÈ ¿ëµµ¿Í ÁÖº¯°úÀÇ Á¢Á¡À» ¸¸µå´Â ¹æ¹ý¿¡ ´ëÇÑ Ãʱ⠽ºÅ͵𰡠¸ÕÀú ÀÌ·ç¾îÁ³´Ù. µÎ ¸éÀÇ µµ·Î¿¡ À¯¿¬ÇÏ°Ô ´ëÀÀÇÏ´Â ÀúÃþºÎ¸¦ °èȹÇϱâ À§ÇØ Ãþº°·Î ÁÖÂ÷¿Í °ø°£À» ±¸ºÐÇÏ´Â ´Ü¼øÇÑ ¹æ½ÄÀÌ ¾Æ´Ñ ÀÔüÀûÀÎ ¹æ½ÄÀ¸·Î °èȹµÇ¾ú´Ù. ÁÖÂ÷´Â 2°³ Ãþ¿¡ ³ª´µ¾î °èȹµÇ¸ç, ±× °á°ú Ä«Æä °ø°£µµ °è´ÜÇü °ø°£À» °¡Áö´Â º¹ÃþÀÇ ÀÔüÀûÀÎ ±¸¼ºÀÌ µÈ´Ù. »ç´Ù¸®²ÃÀÇ ´ëÁö Çü»óÀ» Ȱ¿ëÇÏ¿© °è´ÜÀº ¾Æ·¡·Î °¥¼ö·Ï ³Ð¾îÁø´Ù. °ø¿¬ÀåÀÇ ÀϹÝÀûÀÎ À¯Çü°ú´Â ¹Ý´ë·Î, ¹«´ë°¡ ³Ð°í, °ü¶÷¼®ÀÌ Á¼¾ÆÁø´Ù. ´Ù¸¥ À¯ÇüÀÇ ÀÇ»ç¼ÒÅë - ±¸Á¶ÀÇ °ø°£À̶ó°í Á¤ÀǵȴÙ. ÇÑ ¸íÀÇ ÈÀÚ¿Í ¿©·¯ ûÁßÀÌ ÀÖ´Â ÀϹæÇâÀûÀÎ ±¸Á¶¿¡¼, ¿©·¯ ¸íÀÇ ÈÀÚ¿Í Ã»ÀÚ »çÀÌÀÇ °æ°è°¡ ´õ ¸ðÈ£ÇØÁø´Ù. ÀÌ Ä«Æä´Â Ä¿¹Â´ÏƼ Ȱµ¿À» Áö¿øÇÏ´Â °ø°£ÀÌ´Ù. ÁöÇÏÀÇ ÁֹΠĿ¹Â´ÏƼ ½Ã¼³Àº º¸À̵å·Î ÀÎÇØ °øµ¿ ÁÖÅà ·Îºñ¿Í ½Ã°¢ÀûÀ¸·Î ¿¬°áµÈ´Ù.



»óȲ ÀûÃþ
°Ç¹°Àº Å©°Ô ³× °³ÀÇ µ¢¾î¸®·Î ºÐ¸®µÈ´Ù. ÀÌ ³× °³ÀÇ µ¢¾î¸®´Â °¢°¢ ÁÖÅÃÀ» Æ¯Â¡È ÇÏ´Â µ¿½Ã¿¡ ÁÖº¯ »óȲ¿¡ ´ëÀÀÇÑ´Ù. 1ÃþÀº Åõ¸íÇÑ ±â´ÜÀ» Çü¼ºÇÏ¸ç »ç¶÷µéÀ» ÃÊ´ëÇϰí, 2-3ÃþÀº °î¸éÀÇ ¸Å½º°¡ µÎ µµ·Î¸¦ ½Ã°¢ÀûÀ¸·Î ¿¬°áÇϸç, Äڳʸ¦ Á¤¸éÈ ÇÑ´Ù. Á¦ÀÛµÈ ³¯ÆÇ ¼öÁ÷ ·ç¹ö¸¦ ÅëÇØ ÁÖÅÃÀº µµ·Îº¯À¸·ÎºÎÅÍ »ç»ýȰÀ» º¸È£ÇÑ´Ù. °î¸é°ú »ç°¢Çü »çÀÌ °ø°£¿¡´Â ÀÛÀº Å׶󽺰¡ ¹èÄ¡µÈ´Ù. 4-6ÃþÀº »ç´Ù¸®²ÃÀÇ ¹«°Å¿î ¸Å½º°¡ °Ç¹°Àº ´ç¿¬È÷ Á÷°¢À̶ó´Â Á÷°üÀûÀÎ ¿¹ÃøÀ» ÀÌÁúÀûÀ¸·Î ÀüȯÇÑ´Ù. 2-3Ãþ°ú´Â ´Þ¸® ¹«°Ô°¨ÀÌ ºÎ¿©µÇ¾î ÀüüÀûÀÎ Áß·Â-±äÀå°¨À» Çü¼ºÇÑ´Ù. 7Ãþ¿¡´Â Á¤ºÏÀÏÁ¶»ç¼±À» À§ÇØ ÈÄÅðµÈ ÀÛÀº ¸Å½º°¡ °íÃþºÎ¸¦ ÇÑ ¹ø ´õ º¯È½ÃŲ´Ù.



Way to Home
³ôÀÌ Á¦ÇÑ¿¡ ´ëÀÀÇÏ¸é¼ µµ·Îº¯°úÀÇ ÀÛÀº ´ÜÀý°¨À» ¸¸µé±â À§ÇØ 1Ãþ »óºÎÀÇ ¸Å½º´Â ÀǵµÀûÀ¸·Î ³·°Ô ±ò¸®¸ç °øµ¿ ÁÖÅà ·Îºñ °ø°£À» 2.2mÀÇ Ãþ°í·Î Á¶Á¤ÇÑ´Ù. Á¼Àº µ¢¾î¸®ÀÇ Æ´À¸·Î »ç¶÷µéÀÌ µé¾î°¡¸é, ·Îºñ´Â ÀÛÀº °æ»ç·Î·Î ³·¾ÆÁö¸ç Ãþ°í´Â ´Ù½Ã ³ô¾ÆÁø´Ù. °ø¿ë °ø°£À» ¿ÜºÎÈÇϱâ À§ÇØ °è´Ü ¹× º¹µµÀÇ ½Ç³»´Â ÄÜÅ©¸®Æ® ³ëÃâ·Î ¸¶°¨µÇ¾î ÀÖ°í, °è´Ü½ÇÀÇ ³°£Àº Ãþ°£ °ü°è¸¦ ºÐ¸®Çϱâ À§ÇØ ¼Ö¸®µå ±¸·Î öÆÇÀ¸·Î ¸¶°¨µÇ¾ú´Ù. ÇÔ²² ¿À·§µ¿¾È »ì·Á¸é ¼·Î ÃæºÐÈ÷ »ç»ýȰÀÌ º¸È£µÇ¾î¾ß ÇÑ´Ù. ´Ù¼Ò ¾îµÓ°í µ¿±¼ °°Àº º¹µµ¸¦ Áö³ª Çö°ü¹®À» ¿°í Áý¿¡ µé¾î°¡¸é, ¿ÏÀüÈ÷ ¹àÀº ÁýÀÌ ÆîÃÄÁø´Ù. º¹ÀâÇÑ µ¿³×¸¦ 10ºÐ°£ °É¾î¿À´Â °úÁ¤À» »ó»óÇϸç, ¡®Áý¿¡ ¿Ô´Ù.¡¯´Â °¨°¢À» ÃÖ´ëÇÑ ÀǵµÇÏ¿´´Ù.

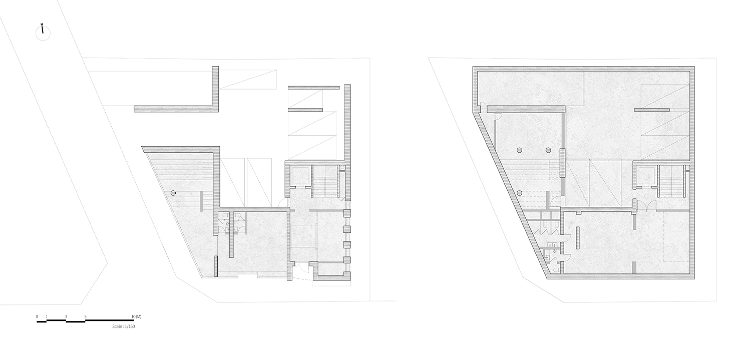
1Ãþ, ÁöÇÏ1Ãþ Æò¸éµµ
2Ãþ, 3Ãþ Æò¸éµµ

Á¾´Ü¸éµµ

Ⱦ´Ü¸éµµ
¡ã SPACE, ½ºÆäÀ̽º, °ø°£
¨Ï VMSPACE ¹«´ÜÀüÀç ¹× Àç¹èÆ÷ ±ÝÁö
°°Ç¿µ
°°Ç¿µ, ±è¼Ò¿µ
¼¿ïƯº°½Ã °¼±¸ ³»¹ß»êµ¿
°øµ¿ÁÖÅÃ(µµ½ÃÇü»ýȰÁÖÅÿø·ëÇü(¾ÆÆÄÆ®))
610.7m©÷
366.15m©÷
1,624.3m©÷
ÁöÇÏ 1Ãþ, Áö»ó 7Ãþ
11´ë
23.1m
59.96%
197.94%
ö±ÙÄÜÅ©¸®Æ®±¸Á¶
Ä¡À庮µ¹, ½ºÅÍÄÚ
ÄÜÅ©¸®Æ® ³ëÃâ, ½ÇÅ©º®Áö
Áß¾Ó±¸Á¶
(ÁÖ)¹Î¼º¿£Áö´Ï¾î¸µ
(ÁÖ)°Å»êÀÌ¿£Áö
(ÁÖ)M.O.AÁ¾ÇհǼ³
2019. 6. ~ 2020. 9.
2021. 1. ~ 2022. 9.
42¾ï¿ø
(ÁÖ)ÄÚÀ̳ë´Ï¾Æ
ADOµðÀÚÀΰÇÃà»ç»ç¹«¼Ò