°¢°¢ÀÇ ¸ð½À
¾Æ¸§´äÁö ¾ÊÀº µ¿³×¸¦ ¸¶ÁÖÇÒ ¶§°¡ ÀÖ´Ù. ½ÉÁö¾î ¼ÒÀ½À¸·Î ´À²¸Áú Á¤µµÀÇ °æ°üÀ» ¸¶ÁÖÇÒ ¶§µµ ÀÖ´Ù. óÀ½ ¸¶ÁÖÇÑ ´ëÁö ÁÖº¯ÀÇ ÀλóÀÌ ±×·¨´Ù. ±×°÷Àº °¡·Î¿¡ ½Éµå··ÇØ º¸ÀÌ´Â °Ç¹°ÀÌ Á¦°¢±â Ç¥Á¤À» µå·¯³»´Â, ¾î¶°ÇÑ ºÐÀ§±âµµ µå·¯³ªÁö ¾Ê´Â °÷À̾ú´Ù. ±×°÷¿¡ 3Ãþ ±Ô¸ðÀÇ Á¶¸íȸ»ç »ç¿Á(±Ù¸°»ýȰ½Ã¼³)À» Áþ±â·Î Çß´Ù.
ÀûÀýÈ÷ ¼ö¿ëÇϱâ
°ÇÃàÀº µ¿³×(µµ½É ȤÀº ¸¶À»)¿Í °ü°è ¸Î´Â ¸Æ¶ôÀû ±¸Ãà ÇàÀ§´Ù. ¡®¸Æ¶ôÀû ±¸Ã࡯Àº º¸ÀÌ´Â °Í¿¡ ´ëÇÑ °í¹ÎÀ» ´ã´Â´Ù. º¼°Å¸®°¡ ¾øÀ» ¶§ °ÇÃàÀÌ ÃëÇÒ ¼ö ÀÖ´Â °¡Àå ¸í·áÇÑ Åµµ´Â, ÀÚÆóÀû ÀÚ¼¼¸¦ ÃëÇÏ´Â °ÍÀÌ´Ù. ´Ù½Ã ¸»Çؼ, Æó¼âÀûÀÎ(³»ºÎ ÁöÇâÀûÀÎ) °ø°£À» ¸¸µé¾î °¡·Î¸¦ µîÁö´Â °ÍÀÌ´Ù. ÇÏÁö¸¸ º¸Åë ÀÌ·¯ÇÑ °ÇÃàÀº °¡·Îȯ°æ¿¡ À¯ÀÍÇÏÁö ¾Ê´Ù.
»ç¿ÁÀº °¡·Î dz°æÀ» ÀûÀýÈ÷ ¼ö¿ëÇϱâ·Î ÇÑ´Ù. ¹Ù²Ù¾î ¸»Çϸé, ÀûÀýÈ÷ ³»ºÎ¸¦ µå·¯³»±â·Î ÇÑ´Ù. ¿©±â¼ Áß¿äÇÑ °Ç ÀûÀýÇÔÀÌ´Ù. ¿ì¼± °è´Ü½ÇÀº ÀÛÀº À̵¿ °ø°£ÀÓÀ» °í·ÁÇÏ¿© Àü¸é âÀ¸·Î Å©°Ô ¿¾îÁØ´Ù. ¹Ý¸é, ¸Ó¹«´Â °ø°£Àº ´«³ôÀÌÀÇ Ç³°æÀ» ÀûÀýÈ÷ Â÷´ÜÇÑ´Ù. Å׶󽺸¦ Æ÷ÇÔÇÏ¿© 2, 3ÃþÀÇ ¿¸° º®Ã¼´Â 1.9m ³ôÀÌ´Ù. »ç¶÷ ۸¦ Á¶±Ý ³Ñ±ä º®Ã¼´Â ºÎ´ã½º·´Áö ¾Ê°Ô ¿ÜºÎ dz°æÀ» ÀûÀýÈ÷ Â÷´ÜÇϸç, °íâ(Å×¶ó½º º®Ã¼ À§)À¸·Î ºû°ú dz°æÀ» ¹Þ¾ÆµéÀδÙ.
dz°æ ¸¸µé±â
°Ç¹°ÀÇ ¾çÂÊ ¸ð¼¸®¸¦ ºñ¿ì°í ÀÚÀÛ³ª¹« µÎ ±×·ç¸¦ ½É´Â´Ù. ¸ð¼¸®´Â Àü¸é âÀ¸·Î Å©°Ô ¿¾îÁØ´Ù. ³»ºÎÀÇ ±âµÕ ¿Àº ³ª¹«¸¦ ÇâÇÑ´Ù. 1.8m ³²Áþ ÆøÀÇ ±â´Ù¶õ Á÷»ç°¢Çü °ø°£À» ¾Ï½ÃÇÏ´Â ±âµÕ ¿Àº ³ª¹«¸¦ ±í°Ô ¹Ù¶óº¸´Â ³»ºÎ Åë°æÃàÀ» ¿Ï¼ºÇÑ´Ù. ³ª¹«°¡ ÃæºÐÈ÷ ÀÚ¶ó¸é, â(Å×¶ó½º)¹ÛÀ¸·Î ÀÚÀÛ³ª¹«ºÎÅÍ ´«¿¡ µé¾î¿Ã °ÍÀÌ´Ù.
2Ãþ ±âµÕ Çϳª´Â ½º½º·Î ³ª¹«°¡ µÈ´Ù. °íâÀ¸·Î µé¾î¿À´Â dz°æº¸´Ù ¸ÕÀú »ç¿ëÀÚÀÇ ½Ã¼±À» ÀâÀ¸·Á, ö°ñ ±âµÕ¿¡ »ï³ª¹«¸¦ ÀÔÇû´Ù. ±×¸®°í 2Ãþ°ú 3Ãþ ¸ðµÎ ÅÁºñ½Ç(ȤÀº º®Ã¼Çü ºÙ¹ÚÀÌ °¡±¸) ´ë½Å ¾ÆÀÏ·£µåÇü ½ÌÅ©´ë¸¦ ¼³Ä¡Çß´Ù. ÀÌ°Í ¿ª½Ã ³»ºÎÀÇ º¼°Å¸®(¿ÀºêÁ¦)¸¦ ¸¸µé±â À§Çؼ´Ù.

°í¿äÇÑ Ç³°æ
Á¦°¢°¢ ¸ð½ÀÀ» µå·¯³»´Â °¡·Î¿¡ °í¿äÇÑ Ç³°æÀ» ½É°í ½Í¾ú´Ù. °¡·Î¸¦ Áö³ª´Â ÀÌ¿Í °Ç¹° »ç¿ëÀÚ ¸ðµÎ ¾ÈÆÆÀ¸·Î ÀûÀýÇÑ °í¿ä¸¦ °æÇèÅä·Ï ÇÏ´Â °ÍÀÌ, °ÇÃàÀû Àǵµ¿´´Ù. ÀÌ·¯ÇÑ Àǵµ¸¦ ¿Ï¼ºÇϱâ À§ÇØ Àç·á¿Í »öÀº ±ØÈ÷ Á¦ÇÑÇß°í, °íâ¿¡´Â È®»ê±¤ÀÌ µé¾î¿À´Â ÇÑÁö ´À³¦ÀÇ ºí¶óÀε带 ¼³Ä¡Çß´Ù. ¾ðÁ¨°¡ ÀÚÀÛ³ª¹«°¡ ÃæºÐÈ÷ ÀÚ¶ó¸é, ¿ÀºêÁ¦(»ï³ª¹« ±âµÕ°ú ³ª¹« ¸¶°¨ÀÇ ½ÌÅ©´ë)¿Í ÇÔ²² ÀûÀýÇÑ °í¿äÀÇ Ç³°æÀÌ ¿Ï¼ºµÉ °ÍÀÌ´Ù.
¹èÄ¡µµ
2, 3Ãþ Æò¸éµµ
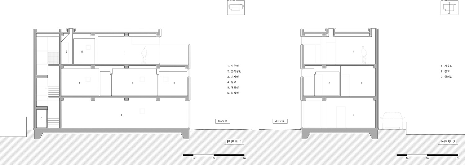
´Ü¸éµµ
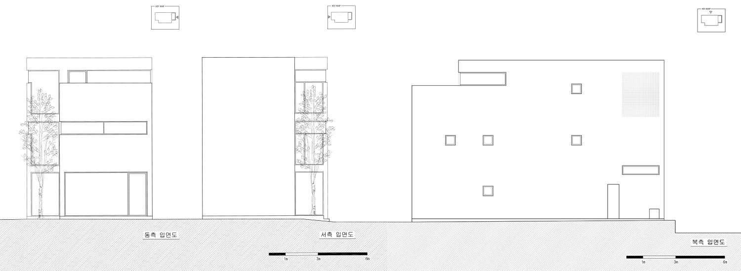
ÀԸ鵵
¡ã SPACE, ½ºÆäÀ̽º, °ø°£
¨Ï VMSPACE ¹«´ÜÀüÀç ¹× Àç¹èÆ÷ ±ÝÁö
½ºÆäÀ̽º¸ÅÅÍ °ÇÃà»ç»ç¹«¼Ò
Àü»óÇö, À̺´ÈÆ
¼¿ï½Ã °¼±¸ ³»¹ß»êµ¿
Á¦2Á¾ ±Ù¸°»ýȰ½Ã¼³
166.2m©÷
99.04m©÷
281.75m©÷
Áö»ó 3Ãþ
2´ë
9.88m
59.59%
169.52%
ö±Ù ÄÜÅ©¸®Æ®
½ºÅä (¿Ü´Ü¿ ¸¶°¨)
³ëÃâ ÄÜÅ©¸®Æ®, ÆäÀÎÆ®, ÇÑÁö
µ¨Å¸±¸Á¶
¼¼¿ø¿£Áö´Ï¾î¸µ(ÁÖ)
(ÁÖ)Á¤¿¬¿£Áö´Ï¾î¸µ
¹Ì¿À°Ç¼³(ÁÖ)
2023. 9. ~ 2024. 4.
2024. 7. ~ 2025. 4.
8¾ï 6õ¸¸ ¿ø
¢ß¼Ò´Ïµ¨±Û·Î¹ú
½ºÆäÀ̽º¸ÅÅÍ °ÇÃà»ç»ç¹«¼Ò